Работа твердотопливного котла на самотяге имеет неоспоримое преимущество - это исключение затрат на монтаж дымососа и затраты на электроэнергию в течение отопительного сезона. Для того чтобы обеспечить одновременно и высокий КПД котла и возможность работы на самотяге, мы применяем уникальную систему тяги и дутья.
Водогрейный твердотопливный котел КВ-1.25 мощностью 1.25 Гкал, предназначен для получения горячей воды номинальной температурой на выходе из котла 95 °С рабочим давлением до 0,6 (6,0) МПа (кгс/см), используемой в системах централизованного теплоснабжения на нужды отопления, горячего водоснабжения. Водогрейный котел КВ 1.25 Гкал предназначен для работы в открытых и закрытых системах теплоснабжения с принудительной циркуляцией воды.
Вид сжигаемого топлива - каменный и бурый уголь. Котлы КВ 1.25 Гкал изначально разработаны с целью снижения прямых затрат при производстве тепловой энергии за счет эффективного сжигания топлива и удобства его эксплуатации.
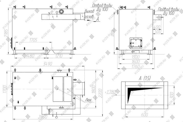
Стальной водогрейный котел КВ 1.25 Гкал выполнен моноблоком - блок котла и ручная топка.
Блок водогрейного котла представляет собой сварную конструкцию, состоящую из трубной системы (радиационной и конвективной поверхности нагрева), опорной рамы и каркаса с теплоизоляционными материалами, обшитого листовой сталью. Котлы имеют П-образную сомкнутую компоновку. Топочная камера угольных котлов состоит из труб Ø 57x3,5 мм. Конвективная поверхность нагрева состоит из пакетов выполненных из труб Ø 57x3,5 мм, для интенсификации теплообмена трубы пакетов расположены в шахматном порядке. Газы в конвективной части делают два хода и выходят через газоход в верхней части задней стенки котла.
Топочная камера водогрейного котла выполнена газоплотной путем плавникового оребрения. Качественная газоплотная теплоизоляция котла КВ 1.25 гарантирует максимальное уменьшение потерь тепла через стенки котла и отсутствие присосов холодного воздуха в топку, делая процесс горения топлива более интенсивным и эффективным. Большой объем топочной камеры обеспечивает более полное выгорание топлива и снижает механический и химический недожог.
Котел КВ 1.25 с развитой конвективной поверхностью нагрева имеет температуру уходящих газов не более 200 °С и как следствие минимально возможные потери с уходящими газами. В газоплотной части котельного блока изоляция выполнена облегченной из плит ПТЭ. В негазоплотной части котельного блока теплоизоляция выполнена из муллитокремнеземистого картона и войлока. Обшивка водогрейных котлов выполнена из стальных листов. Для очистки конвективных поверхностей нагрева от сажистых и золовых отложений предусмотрены двери.
Для обеспечения стабильной работы котла КВ 1.25 без дымососа применяется запатентованная система регулирования тяги и дутья.
СРТ позволяет обеспечить максимально эффективную работу котла без дымососа. При пуске котла КВ 1.25 при плюсовых температурах на улице, через обводной газоход, не имея на своем пути никакого сопротивления газы, свободно выходят из топочной части котла и двигаются по обводному газоходу, разогревают дымовую трубу. После установления стабильного режима горения слоя топлива, обводной газоход перекрывается, и газы двигаются уже через конвективные пакеты.
Тяга включилась, водогрейный котел на самотяге выходит на мощность, КПД котла максимально. Нет затрат на электроэнергию, нет потерь с уходящими газами, конструкция котла оптимальна.
С применением СРГ решаются просто следующие задачи:
Оптимальная гидравлическая система котла КВ 1.25 обеспечивает возможность высоконадежной и высокоэффективной работы котла по противоточной схеме, когда конвективная поверхность выступает в роли экономайзера, тем самым обеспечивая повышение КПД котла. Скоростная вихревая гидравлическая схема движения теплоносителя, обеспечивает стабильную безнакипную работу котла без водоподготовки.
Водогрейные котлы КВ 1.25 - безнакипные, имеют систему движения потока воды исключающую образование застойных зон, перегрев поверхностей нагрева, обеспечивают хороший теплосъем, отсутствие накипи и, следовательно, необходимость в водоподготовке.
В топке РВР достигнуто максимальная эффективность сжигания низкокалорийного и низкосортного топлива. Зеркало горения имеет максимально большую и равномерно распределенную область подачи воздуха в слой топлива. Оптимальный режим горения, позволяет не только более эффективно сжигать подаваемое на решетку топливо, но и устраняет зависимость эффективности сгорания топлива от его вида, и свойств по спекаемости, зольности и фракционности.
Опытным путем было доказано, что одно только применение РВР позволяет снизить механический и химический недожог, и тем самым повысить КПД, связанное с активным горением и провалом на 3 %. Простота и удобство в обслуживании, особенность устройства поверхности РВР позволяют оперативно снимать слой топлива и шлака из топки в случае аварийной ситуации в котельной.
Котел КВ 1.25, ручная топка РВР, система тяги и дутья РСТ, запорные вентили, предохранительные клапаны, термометры, манометры, трехходовые краны, вентилятор поддува ВЦ 14-46 № 2,5 с дв. 4,0/3000, паспорт и инструкция по эксплуатации водогрейного котла КВ 1.25.
Осуществляется ж/д контейнером и автотранспортом. Для оценки стоимости доставки пришлите заявку и мы оперативно проведем расчет стоимости доставки котельного оборудования до вашего города или населенного пункта. Для вашего удобства предлагаем оформить заявку и уточнить интересующую вас информацию онлайн.
Для того чтобы купить котел КВ 1.25, вы можете сделать заявку в отдел сбыта по телефону (38-52) 29-97-41 (42), либо оформить заявку онлайн. Наши менеджеры дадут консультацию по подбору вспомогательного оборудования для выбранных вами моделей и рассчитают стоимость доставки до вашего региона и населенного пункта. Также предлагаем вам выполнить проект реконструкции котельной.
Цена водогрейного котла КВ-1.25 в Иркутске включает в себя котельный блок в изоляции, колосниковую топку, устройство тяги и дутья, вентили, затворы, манометры, термометры, вентилятор поддува и предохранительные клапаны. Ниже приведена подробная информация.
Для эффективной и надежной работы котла КВ-1.25 в вашей котельной вам потребуется дополнительное оборудование - автоматика ЩУК, насос сетевой и подпиточный, газоходы и переходники для газового тракта, дымовая труба. Мы предлагаем рассмотреть типовые варианты комплектации.
В случае если у вас на объекте уже имеется насосное и тягодутьевое оборудование, мы можем проверить совместимость котла КВ-1.25 нашего производства и вашего оборудования.
Можем изготовить нестандартные узлы для выполнения быстрого монтажа котла - газоходы и узлы обвязки.
Типовую схему монтажа котла вы можете посмотреть во вкладке схемы подключения и монтаж.
Водогрейный твердотопливный стальной отопительный котел КВ-1.25 без дымососа на самотяге, предназначен для получения горячей воды номинальной температурой на выходе из котла от 95 до 115 °С рабочим давлением до 0,6 (6,0) МПа (кгс/см), используемой в системах централизованного теплоснабжения на нужды отопления, горячего водоснабжения. Устанавливается в производственных, промышленных и отопительных котельных.
Монтаж водогрейного котла КВ-1.25 и вспомогательного оборудования в котельной должно производиться в соответствии с проектом и учетом требований СП 89.13330. 2016 «Котельные установки. Актуализированная редакция СНиП II-35-76» и «Правил устройства и безопасной эксплуатации паровых котлов с давлением пара не более 0,07 МПа (0,7 кгс/см2), водогрейных котлов и водоподогревателей с температурой нагрева воды не выше 388 К (115 С). Правильный монтаж котла – залог его надежной и долгой работы.
Чтобы правильно подключить котел КВ-1.25 без дымососа на самотяге в котельной необходимо оставить проемы для обслуживания оборудования во время эксплуатации. На представленной здесь схеме указаны их минимальные размеры. Кроме того, в данной примерной схеме монтажа водогрейных котлов и оборудования указан перечень минимально необходимого вспомогательного оборудования для правильной работы котла.
К вспомогательному оборудованию при подключении промышленного водогрейного котла без дымососа относят - щит управления котлом, насос циркуляционный, насос подпиточной воды, бак запаса воды, расширительный мембранный бак, дымовую трубу, систему газоходов и дымосос, золоуловитель (по желанию).
В случае если подпиточная вода не соответствует по своим характеристикам требованиям к питательной воде, необходимо предусмотреть систему водоподготовки котловой воды.
Для котельных 1 категории, являющиеся единственным источником тепла системы теплоснабжения и обеспечивающие потребителей первой категории, не имеющих индивидуальных резервных источников тепла, необходимо предусмотреть полное резервирование оборудования – подключение 2 (двух) котлов, насосов, ТДМ. Пунктиром обозначено оборудование для резервирования.
Для котельных 2 категории, включающие в себя промышленные и производственные котельные резервирование нужно предусматривать по необходимости.
Водогрейные котлы производства Котельный завод "РЭП" соответствуют строгим стандартам качества и безопасности. Завод производит котлы в соответствии с требованиями ГОСТ 30735-3001 по Техническим Условиям завода.
Котлы имеют сертификаты соответствия Техническим регламентам Таможенного союза:

Отзыв о работе котла КВр производства Котельный завод "РЭП", проработавшего на АО "Водоканал" г. Белокуриха 10 лет. Интервью предоставил заместитель главного директора по производству Суходоев Сергей Николаевич.

Интервью с главным энергетиком базового комплекса "Сводор" г. Барнаул о работе водогрейного котла нашего производства, отапливающего предприятие с 2008 года.
Промышленный водогрейный котел КВ 1.25 работающий на самотяге без дымососа. Котлы серии КВ применяются для отопления производства, жилых зданий, цехов, складов, промышленных предприятий, теплиц, гаражей, больниц, школ, садов, для монтажа в блочно модульных котельных.
Подобрать мощность котла по площади важно учитывая не только площадь и объем здания, но и тип зданий и климатические данные региона.
На нашем сайте калькулятор расчета мощности котла учитывает тепло, требуемое на возмещение тепловых потерь через строительные конструкции и потери, вызываемые инфильтрацией (проникновением) наружного воздуха, через их неплотности и периодически открываемые двери.
Наружный строительный объем здания должен определяться умножением площади горизонтального сечения, взятого по внешнему обводу здания на уровне первого этажа на полную высоту здания, измеренную для панельных зданий: от уровня чистого пола (нулевой отметки) до верхней плоскости теплоизоляционного слоя чердачного покрытия, для остальных строений от уровня земли.
Расчетная температура воздуха в отапливаемых зданий принимается в зависимости от типа и назначения здания:
В случае если требуется отопление различных по типу зданий, теплопотребление каждого считается отдельно, полученные значения складываются и подобрать мощность котла нужно в соответствии с общей суммарной мощностью каждого отдельно стоящего задания.
Климатические условия вашего региона принимаются в соответствии с СП 131.13330 Строительная климатология. Данные по всем регионам России занесены в наш калькулятор расчета мощности котла.
Подобрать мощность котла по площади с учетом потребностей объекта в тепле на вентиляцию и горячую воду возможно только с более детальным расчетом. Его вы можете заказать в отделе сбыта котельного завода отправив заявку на электронный адрес sb@kvzr.ru или позвонив по телефонам (38-52) 29-97-41, 29-97-42.